Descriere
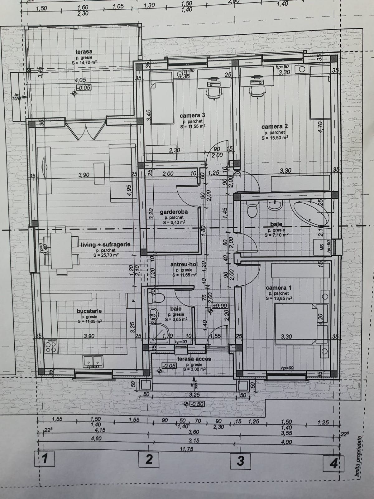
De vânzare casă la cheie singur în curte, 4 camere situată în Sancraiu de Mures Strada Vale,suprafața utilă de 110 mp. +14 mp terase, suprafata construita 145 mp.. amplasată pe un teren cu suprafața de 500 mp,
Compartimentare:
– : 1 living, 3 dormitoare,1 bucătărie, 2 băi,1 dresing,1 debara, 1 terasă acoperită
Detalii:
– centrală termică, incălzire in pardoseală, geamuri tripan ,pod izolat cu vată
– fundația casei are o adâncime de 1 m, pereții sunt din cărămidă, acoperișul de țiglă, izolată cu polistiren de 10 cm.
– anul construcției 2026
Utilitați:
– curent, apă, gaz, canalizare
Casa se vinde la cheie la prețul de 169.000 Euro tva inclus în preț. Comision ZERO!
– gardul, pavajul,obiectele sanitare, gresie ,faianta , parchet, usi interioare ,poarta automatizata incluse in pret
Locuința este compusă din 3 dormitoare, 2 băi, 1 living, 1 bucătărie, hol, 1 cămara, 1 dressing (din care se poate urca în pod unde se mai poate amenaja o camera de 45 mp) și 2 terase acoperite . izolația podului care este realizata cu vata 20cm , termosistemul casei este realizat din polistiren 10 cm grosime, Casa este finisata, cu tencuiala decorativa, geamuri termopan
Casa cuprinde toate instalațiile de apa menajeră ,canal , căldura , electricitate ,gaz și este racordata la sistemul de apa și canal , electricitate și gaz !
Daca vă place această ofertă sau pentru alte informații sunați la numărul de contact din anunț! 0774048706 Bogdan
Compania Zap Imobiliare vă pune la dispoziție toate actele și documentele necesare alături de asistență și consiliere permanentă până la finalizarea achiziției imobiliare.
Ne dorim să îți oferim cea mai plăcută experiență, îndeplinim vise cu pereți!
